2007年造價工程師《工程造價案例分析》真題
2007年度全國造價工程師執業資格考試試題及參考答案
試題一:(20分)
某工程項目施工承包合同價為3200萬元,工期18個月,承包合同規定:
1.發包入在開工前7天應向承包入支付合同價20%的工程預付款。
2.工程預付款自工程開工后的第8個月起分5個月等額抵扣。
3.工程進度款按月結算。工程質量保證金為承包合同價的5%,發包入從承包入每月的工程款中按比例扣留。
4.當分項工程實際完成工程量比清單工程量增加10%以上時,超出部分的相應綜合單價調整系數為0.9.
5.規費費率3.5%.以工程量清單中分部分項工程合價為基數計算;稅金率3.41%,按規定計算。
在施工過程中,發生以下事件:
(1)工程開工后,發包人要求變更設計。增加一項花崗石墻面工程.由發包入提供花崗石材料,雙方商定該項綜合單價中的管理費、利潤均以入工費與機械費之和為計算基數,管理費率為40%,利潤率為14%。消耗量及價格信息資料見下表:

(2)在工程進度至第8個月時,施工單位按計劃進度完成了200萬元建安工作量,同時還完成了發包人要求增加的一項工作內容。經工程師計量后的該工作工程量為260m2.經發包人批準的綜臺單價為352元/m2.
(3)施工至第14個月時,承包入向發包入提交了按原綜合單價計算的該項月已完工程量結算報18萬元。經工程師計量。其中某分項工程因設計變更實際完成工程數量為580m3(原清單工程數量為360m3,綜合單價1200元/m3).
問題:
1.計算該項目工程預付款。
2.編制花崗石墻面工程的工程量清單綜合單價分析表,列式計算并把計算結果填入答題紙表1.1中。
3.列式計算第8個月的應付工程款。
4.列式計算第14個月的應付工程款。
(計算結果均保留兩位小數,問題3和問題4的計算結果以萬元為單位。)
試題二:(20分)
某大型工業項目的主廠房工程,發包人通過公開招標選定了承包入.并依據招標文件和投標文件,與承包人簽訂了施工舍同。合同中部分內容如下,
(1)合同工期160天,承包入編制的初始網絡進度計劃,如圖2.1所示。

由于施工工藝要求,該計劃中C、E、I三項工作施工需使用同一臺運輸機械;B、D、H三項工作施工需使用同一臺吊裝機械。上述工作由于施工機械的限制只能按順序施工.不能同時平行進行。
(2)承包入在投標報價中填報的部分相關內容如下;
①完成A、B、C、D、E、F、G、H、I九項工作的入工工日消耗最分別為:100、400、400、300、200、60、60、90、1000個工日;
②工入的日工資單價為50元/工日,運輸機械臺班單價為2400元/臺班;吊裝機械臺班單價為1200元/臺班;
③分項工程項目和措施項目均采用以直接費為計算基礎的工料單價法.其中的間接費費率為18%;利潤率為7%;稅金按相關規定計算.施工企業所在地為縣城。
(3)合同中規定:人員窩工費補償25元/工日;運輸機械折舊費1000元/臺班;吊裝機械折舊費500元/臺班。
在施工過程中,由于設計變更使工作E增加了工程量.作業時間延長了20天,增加用工100個工日,增加材料費2.5萬元,增加機械臺班20個.相應的措施費增加1.2萬元.同時,E、H、I的工人分別屬于不同工種,H、I工作分別推遲20天。
問題:
1.對承包入的初始網絡進度計劃進行調整,以滿足施工工藝和施工機械對施工作業順序的制約要求。
2.調整后的網絡進度計劃總工期為多少天?關鍵工作有哪些?
3.按《建筑安裝工程費用項目組成》(建標[2003]206號)文件的規定計算該工程的稅率。分項列式計算承包商在工作E上可以索賠的直接費、間接費、利潤和稅金。
4.在因設計變更使工作E增加工程量的事件中,承包商除在工作E上可以索賠的費用外,是否還可以索賠其他費用?如果有可以索賠的其他費用,請分項列式計算可以索賠的費用,如果沒有,請說明原因。(計算結果均保留兩位小數。)
2007年造價工程師考試——《工程造價管理基礎理論與相關法規》真題及答案
2007年造價工程師考試——《工程造價計價與控制》真題及答案
2007年造價工程師考試——《建設工程技術與計量(土建)》真題及答案
試題三:(20分)
某承包人參與一項工程的投標,在其投標文件中。基礎工程的工期為4個月,報價為1200萬元,主體結構工程的工期為12個月。報價為3960萬元,該承包入中標并與發包人簽訂了施工合同。合同中規定,無工程預付款,每月工程款均于下月末支付,提前竣工獎為30萬元/月。在最后1個月結算時支付。
簽訂施工合同后。該承包入擬定了以下兩種加快施工進度的措施:
(1)開工前夕,采取一次性技術措施。可使基礎工程的工期縮短1個月,需技術措施費用60萬元;
(2)主體結構工程施工的前6個月,每月采取經常性技術措施,可使主體結構工程的工期縮短1個月,每月末需技術措施費用8萬元。
假定貸款月利率為1%,各分部工程每月完成的工作量相同且能按合同規定收到工程款。

問題:
1.若按原合同工期施工,該承包入基礎工程款和主體結構工程款的現值分別為多少?
2.該承包入應采取哪種加快施工進度的技術措施方案使其獲得最大收益?
3.畫出在基礎工程和主體結構工程均采取加快施工進度技術措施情況下的該承包入的現金流量圖。
(計算結果均保留兩位小數。)
試題四:(20分)
某工程采用公開招標方式,招標入3月1日在指定媒體上發布了招標公告,3月6日至3月12日發售了招標文件,共有A、B、C、D四家投標人購買了招標文件。在招標文件規定的投標截止日(4月5日)前,四家投標入都遞交了投標文件。開標時投標人D因其投標文件的簽署入沒有法定代表入的授權委托書而被招標管理機構宣布為無效投標。
該工程評標委員會于4月15日經評標確定投標入A為中標入,并于4月26 日向中標入和其他投標人分別發出中標通知書和中標結果通知,同時通知了招標入。
發包入與承包入A于5月10 日簽訂了工程承包合同.合同約定的不含稅合同價為6948萬元,工期為300天;合同價中的間接費以直接費為計算基數,間接費率為12%,利潤率為5%。
在施工過程中,該工程的關鍵線路上發生了以下幾種原因引起的工期延誤:
(1)由于發包入原因,設計變更后新增一項工程于7月28日至8月7日施工(新增工程款為160萬元);另一分項工程的圖紙延誤導致承包入于8月27日至9月12日停工。
(2)由于承包入原因,原計劃于8月5日晨到場的施工機械直到8月26日晨才到場。
(3)由于天氣原因.連續多日高溫造成供電緊張。該工程所在地區于8月3日至8月5日停電,另外,該地區于8月24日晨至8月28日晚下了特大暴雨。
在發生上述工期延誤事件后,承包入A按合同規定的程序向發包入提出了索賠要求,經雙方協商一致。除特大暴雨造成的工期延誤之外,對其他應予補償的工期延誤事件.既補償直接費又補償間接費,間接費補償按合同工期每天平均分攤的間接費計算。
問題:
1.指出該工程在招標過程中的不妥之處,并說明理由。
2.談工程的實際工期延誤為多少天?應予批準的工期延長時間為多少天?分別說明每個工期延誤事件應批準的延長時間及其原因。
3.圖紙延誤應予補償的間接費為多少?
4.該工程所在地市政府規定.高溫期間施工企業每日工作時間減少1小時,企業必須給職工每入每天10元高溫津貼。若某分項工程的計劃工效為1.50平方米/每小時。計劃工日單位為50元,高溫期間的實際工效降低10%.則高溫期間該分項每平方米入工費比原計劃增加多少元?
(費用計算結果保留兩位小數。)
試題五:(20分)
某企業擬建一條生產線。設計使用同規模標準化設計資料。類似工程的工程費用造價指標見表5.1;類似工程造價指標中主要材料價格表見表5.2.擬建工程當地現行市場價格信息價格及指數見表5.3.



問題:
1.擬建工程與類似工程在外部建設條件有以下不同之處:
(1)擬建工程生產所需粘土原料按外購考慮,不自建粘土礦山;
(2)擬建工程石灰石礦采用2.5km皮帶長廊輸送,類似工程采用具有同樣輸送能力的1.5km皮帶長廊。
根據上述資料及內容分別計算調整類似工程造價指標中的建筑工程費、設備購置費和安裝工程費。
2.類似工程造價指標中建筑工程費用所含的材料費、入工費、機械費、綜合稅費占建筑工程費用的比例分別為58.64%、14.58%、9.46%、17.32%。
根據已有資料和條件,在答題紙表5.1中計算建筑工程費用中的材料綜合調整系數,計算擬建工程建筑工程費用。
3.行業部門測定的擬建工程設備購置費與類擬工程設備購置費相比下降2.91%,擬建工程安裝工程費與類似工程安裝工程費相比增加8.91%。根據已有資料和條件,計算擬建工程設備購置費、安裝工程費和工程費用。
(計算結果均保留兩位小數。)
2007年造價工程師考試——《工程造價管理基礎理論與相關法規》真題及答案
2007年造價工程師考試——《工程造價計價與控制》真題及答案
2007年造價工程師考試——《建設工程技術與計量(土建)》真題及答案
試題六:(40分)
本試題分三個專業(Ⅰ土建工程、Ⅱ工業管道安裝工程、Ⅲ電氣安裝工程),請任選其中一題作答。若選作多題,按所答的第一題(卷面順序)計分。
Ⅰ.土建工程
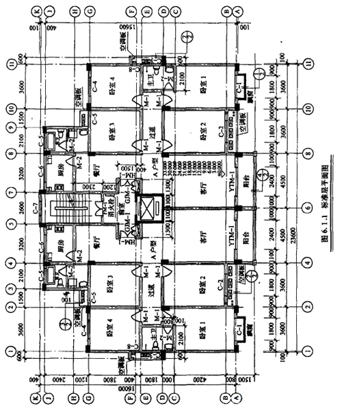
某小高層住宅樓建筑部分設計如圖6.I所示,共12層。每層層高均為3米,電梯機房與樓梯間部分凸出屋面。墻體除注明者外均為200mm厚加氣混凝土墻.軸線位于墻中。外墻采用50mm厚聚苯板保溫。樓面做法為20mm厚水泥砂漿抹面壓光。樓層鋼筋混凝土板厚100mm,內墻做法為20mm厚混合砂漿抹面壓光。為簡化計算首層建筑面積按標準層建筑面積計算.陽臺為全封閉陽臺,⑤和⑦軸上混凝土柱超過墻體寬度部分建筑面積忽略不計,門窗洞口尺寸見表6.I.1,工程做法見表6.I.2.


問題:
1.依據《建筑工程建筑面積計算規范》(GB/T 50353-2005)的規定,計算小高層住宅樓的建筑面積。
將計算過程、計量單位及計算結果填入答題紙表6.I.1“建筑面積計算”。
2.依據《建筑工程工程量清單計價規范》附錄B的工程量計算規則,計算小高層住宅樓二層臥室1、臥室2、主衛的樓面工程量以及墻面工程量.將計算過程、計量單位及計算結果按要求填入答題紙表6.I.2“分部分硬工程量計算”。
3.結合圖紙及表6.I.2“工程做法”進行分部分項工程量清單的項目特征描述,將描述和分項計量單位填入答題紙表6.I.3“分部分項工程量清單”。
(計算結果均保留兩位小數。)


Ⅱ.管道安裝工程
1.某住宅區室外熱水管網布置如圖6.Ⅱ所示。
管網部分分部分項工程量清單項目的統一編碼見下表:

2.有一輸氣管線工程需用Φ11020×6的碳鋼板卷管直管,按管道安裝設計施工圖示直管段凈長度(不含閥門、管件等)共5000m,采用埋弧自動焊接。所用鋼材均由業主供應標準成卷鋼材。某承包商承擔了該項板卷管直管的制作工程,板卷管直管制作的工料機單價和相關要求說明如下:

注:1. Φ1020×6的碳鋼板卷管直管重量按150kg/m計;
2.按照以下規定:碳鋼板卷管安裝的損耗率為4%。每制作1t的板卷管直管工程量耗用鋼板材料1.05t;鋼卷板開卷與平直的施工損耗率為3%;
3.管理費、利潤分別按人工費的60%、40%計。
問題:
1.將各項管道和管道支架制作安裝清單項目工程量的計算過程,分別寫在答題紙相應位置。根據《建設工程工程量清單計價規范》的有關規定,編制如圖6.Ⅱ所示管網系統的分部分項工程量清單項目,將結果填入答題紙表6.Ⅱ.1“分部分項工程量清單表”第2、3、4、5欄內。
2.在答題紙相應位置寫出答題紙中要求的有關項目的計算過程:
(1) Φ1020×6碳鋼板直管制作工程量;
(2)制作碳鋼板直管前,需對成卷碳鋼板進行開卷與平直的工程量;
(3)發包人所供應標準成卷鋼材的數量及其費用;
(4)承包人應該向發包方計取的該項鋼板卷管制作分部分項工程量清單費用數額。依據《建設工程工程量清單計價規范》《全國統一安裝工程預算定額》的有關的規定,計算出Φ1020×6碳鋼板直管制作(清單項目的統一編碼為030613001)的分部分項工程量清單綜合單價,將相關數據填入答題紙表
6.Ⅱ.2“分部分項工程量清單綜合單價計算表”中。
(以上計算結果保留兩位小數。)

說明
1.本圖所示為某住宅小區室外熱水管網平面布置圖.該管道系統工作壓力為1.0MPa.熱水溫度為95℃.圖中平面尺寸均以相對坐標標注.單位以m計,詳圖尺寸以mm計。
2.管道敷設管溝(高600mm×寬800mm)內,管道均采用20#碳鋼無縫鋼管,彎頭采用成品沖壓彎頭、異徑管,三通現場挖眼連接,管道系統全部采用手工電弧焊接。
3.閘閥型號為Z41H-1.6,止回閥型號為H41H-1.6.水表采用水平螺翼式法蘭連接,管網所用法蘭均采用碳鋼平焊法蘭連接.
4.管道支架為型鋼橫擔.管座采用碳鋼板現場制作,Φ325×8管道每7m設一處,每處重量為16kg;Φ159×6管道每6m設一處,每處重量為15kg;Φ108×5管道每5m設一處。每處重量為12kg.其中施工損耗率為6%.
5.管道安裝完畢用水進行水壓試驗和消毒沖洗,之后管道外壁進行除銹,刷紅丹防銹漆二遍。外包巖棉管殼(厚度為60mm)作絕熱層。外纏鋁箔作保護層。
6.管道支架進行除銹后,均刷紅丹防銹漆、調和漆各二遍。
Ⅲ.電氣安裝工程
某氮氣站動力安裝工程如圖6.Ⅲ所示:
1.PD1、PD2均為定型動力配電箱,落地式安裝,基礎型鋼用10#槽鋼制作.其重量為10kg/m.
2.PD1至PD2電纜沿橋架敷設-其余電纜均穿鋼管敷設.埋地鋼管標準高為-0.2m.埋地鋼管至動力配電箱出口處高出地坪+0.1m.
3.4臺設備基礎標高均為+0.3m.至設備電機處的配管管口高出基礎面0.2m,均連接1根長0.8m同管徑的金屬軟管。
4.計算電纜長度時不計算電纜敷設弛度、波形彎度和交叉的附加長度,連接電機處,出管口后電纜的預留長度為1m,電纜頭為戶內干包式,其附加長度不計。
5.電纜橋架(200×100)的水平長度為22m.
6.表中數據為計算該動力安裝工程的相關費用:

管理費和利潤分別按人工費的55%和45%計。
分部分項工程量清單的統一編碼為:

問題:
1.根據圖示內容和《建設工程工程量清單計價規范》的規定,計算相關工程量和編制分部分項工程量清單。將配管、電纜敷設和電纜橋架工程量的計算式填入答題紙上的相應位置,并填寫答題紙表6.Ⅲ。1
“分部分項工程量清單”。
2.假設電力電統YJV4×16穿管敷設的清單工程量為30m.依據上述相關費用數據計算配電箱(落地式安裝)和電力電纜YJV4×16穿管敷設二個項目的綜合單價,并分別填入答題紙表6.Ⅲ。2和表6.Ⅲ。3
“分部分項工程量清單綜合單價計算表”。
(計算過程和結果均保留兩位小數。)

2007年造價工程師考試——《工程造價管理基礎理論與相關法規》真題及答案
2007年造價工程師考試——《工程造價計價與控制》真題及答案
2007年造價工程師考試——《建設工程技術與計量(土建)》真題及答案
2007年度全國造價工程師執業資格考試試卷標準答案
試題一:(20分)
問題1(2分)
工程預付款:3200×20%=640(萬元) (2分)
問題2(9分)
人工費:0.56×60=33.60(元/m2) (1分)
材料費:0.155×0.8+0.0299×240+6.4=13.70(元/m2) (1分)
[或:13.70+1.06×530=575.50(元/m2)]
機械費;0.0052×49.18+0.0969×52=5.29(元/m2) (1分)
管理費:(33.60+5.29)×40%=15.56(元/m2) (1分)
利潤: (33.60+5.29)×14%=5.44(元/m2) (1分)
綜合單價;33.60+13.70+5.29+15.56+5.44=73.59(元/m2) (1分)
[或:33.60+575.50+5.29+15.56+5.44=635.39(元/m2)]

問題3:(4分)
增加工作的工程款:260×352×(1+3.5%)(1+3.41%)=97953.26(元)=9.80(萬元) (1分)
第8月應付工程款:(200+9.80)×(1-5%)-640÷5(2分)=71.31(萬元) (1分)
問題4:(5分)
該分項工程增加工程量后的差價。
(580-360×1.1)×1200×(1-0.9)×(1+3.5%)(1+3.41%)(2分)=23632.08(元)=2.36(萬元)(1分)
或:該分項工程的工程款應為:
[360×1.1×1200+(580-360×1.1)×1200×0.9]×(1+3.5%)(1+3.41%)=72.13(萬元)(1分)
承包商結算報告中該分項工程的工程款為:
580×1200×(1+3.5%)(1+3.41%)=74.49(萬元) (1分)
承包商多報的該分項工程的工程款為;74.49-72.13=2.36(萬元) (1分)
第14個月應付工程款(180-2.36)×(1-5%)(1分)=168.76(萬元) (1分)
試題二:(20分)
問題1:(4分)
對初始網絡進度計劃進行調整,結果如圖2.2所示。

問題2 (3分)
(1)總工期仍為160(天) (1分)
(2)關健工作有A、C、E、I (2分)
(或①-③-⑦-⑨-⒀-⒂)
問題3
談工程的稅金率為:3%(1+5%+3%)/1-3%(1+5%+3%)=3.35% (2分)
[或:1/[1-3%(1+5%+3%)]-1=3.35%]
評分說明:上面稅率計算無計算過程式,而計算結果正確得1分
承包在商工作E上可以索賠的費用。
直接費100×50+25000+2400×20+12000=90000(元) (1分)
間接費90000×18%=16200(元) (1分)
利潤(90000+16200)×7%=7434(元) (1分)
稅金(90000+16200+7434)×3.35%=3806.741元) (1分)
問題4:(7分)
還可以索賠其他費用 (1分)
這些費用包括,
(1)H工作費用索賠
①因為H工作有10天總時差,所以,入員窩工和吊裝機械閑置時間為:
20-10=10(天) (1分)
②每天窩工人數為:90/30=3(工日/天) (1分)
③索賠費用為:3×10×25+10×500=5750(元) (1分)
(2)I工作費用索賠:
①入員窩工時間為20天 (1分)
②每天窩工人數為:1000/50=20(工日/天) (1分)
③索賠費用為:20×20×25=10000(元) (1分)
2007年造價工程師考試——《工程造價管理基礎理論與相關法規》真題及答案
2007年造價工程師考試——《工程造價計價與控制》真題及答案
2007年造價工程師考試——《建設工程技術與計量(土建)》真題及答案
試題三:(20分)
問題1: (5分)
解:基礎工程每月工程款A1=1200/4=300(萬元) (0.5分)
則,基礎工程每月工程款的現值為:。
P V1= A1 (P/A,1%,4)(P/F,1%,1)=300×3.902×0.990=1158.89(萬元) (2分)
主體結構工程每月工程款A2=3960/12=330(萬元) (0.5分)
則.主體結構工程款的現值為:
P V2= A2(P/A,1%,12)(P/F,1%,5)=330×11.255×0.951=3532.16(萬元) (2分)
問題2(11分)
解:該承包商可采用以下三種加快施工進度的技術措施方案:
(1)僅加快基礎工程的施工進度。則: (2分)
P V基=400(P/A,1%,3)(P/F,1%,1)+330(P/A,1%,12)(P/F,1%,4)+30(P/F,1%,16)-60
=400×2.941×0.990+330×11.255×0.961+30×0.853-60
=4699.53(萬元) (0.5分)
(2)僅加快主體結構工程的施工進度。則:
P V結=300(P/A,1%,4)(P/F,1%,1)+360(P/A,1%,11)(P/F,1%,5)+30(P/F,1%,15)-8(P/A,1%,6)(P/F,1%,4) (1分)
=300×3.902×0.990+360×10.368×0.951+30×0.853-8×5.795×0.961
=4689.52(萬元) (1分)
(3)既加快基礎工程的施工進度,又加快主體結構工程的施工進度.則: (2分)
P V=400(P/A,1%,3)(P/F,1%,1)+360(P/A,1%,11)(P/F,1%,4)+60(P/F,1%,15)-60-8(P/A,1%,6)(P/F,1%,3) (1分)
=400×2.941×0.990+360×10.368×0.961+60×0.861-60-8×5.795×0.971
=4698.19(萬元) (1分)
由計算結果看出,僅加快基礎工程施工進度的技術措施方案能獲得較大收益。 (2分)
評分說明:
(1)三個方案均考慮到得3分;考慮兩個基本方案得1分;僅提出一個方案的.本問題不得分。
(2)各方案如果列式和邏輯不正確.經計算無意選擇了正確結果相關部分不得分。
(3)列式正確。但在計算過程中,由于小數點取合問題導致的正常范圍內的數據偏差,不扣分。
問題3: (4分)
基礎工程和主體結構工程均采取加快施工進度技術措施情況下的現金流量圖為:

試題四:(20分)
問題1:(4分)
招標管理機構宣布無效投標不妥(1分),應由招標人宣布(1分)評標委員會確定中標人并發出中標通知書和中標結果通知不妥(1分),應由招標入發出。(1分)
問題2:(8分)
該工程的實際工期延誤為47天.(0.5分)應批準的工期延長為32天。(0.5分)其中.新增工程屬于業主應承擔的責任(0.5分)應批準工期延長11天(7月28日至8月7日),(1分)
圖紙延誤屬于業主應承擔的責任(0.5分)應批準延長工期為15天(8月29日至9月12日) (1分)
停電屬于業主應承擔的責任,(0.5分)應批準工期延長為3天(0.5分)
施工機械延誤屬于承包商責任(0.5分)不予批準延長工期(0.5分)
特大暴雨造成的工期延誤屬于業主應承擔的風險范圍,(0.5分)但8月24~25日屬于承包商機械未到場延誤在先.不予索賠,(0.5分)應批準工期延長3天(8月26日至8月28日)。(0.5分)
問題3(4分)
解:合同價中的間接費為: 6948×(0.12/1.12×1.05)=708.98(萬元) (2分)
或:合同價中的利潤為:6948×(0.05/1.05)=330.86(萬元)
合同價中的間接費為:(6948-330.86)×(0.12/1.12)=708.98(萬元)
所以,合同價中每天的間接費為:708.98/300=2.36(萬元/天) (1分)
圖紙延誤應補償的間接費為:15×2.36=35.40(萬元) (1分)
問題4 (4分)
解:計劃的單方人工費為,50÷(8×1.5)=4.17(元/m2) (1分)
實際的單方人工費為:(50+10)÷[7×(1-10%)×1.5]=6.35(元/m2) (2分) 則,單方人工費的增加額為:6.35-4.17=2.18(元/m2) (1分)
2007年造價工程師考試——《工程造價管理基礎理論與相關法規》真題及答案
2007年造價工程師考試——《工程造價計價與控制》真題及答案
2007年造價工程師考試——《建設工程技術與計量(土建)》真題及答案
試題五:(20分)
問題1(6分)
(1)類似工程建筑工程費調整:
不建粘土礦減125.00(萬元) (0.5分)
運礦皮帶長廊加長1.0km增加430× 1.0/1.5=286.67(萬元) (0.5分)
類似工程建筑工程費調整為:19896-125.00+286.67=20057.67(萬元) (1分)
或:430×2.5/1.5=716.67(萬元) (0.5分)
19896-125.00-430+716.67=20057.67(萬元) (1.5分)
(2)類似工程設備購置費調整:
不建粘土礦減380.00(萬元) (0.5分)
運礦皮帶長廊加長1.0km增加460×1.0/1.5=306.67(萬元) (1.5分)
類似工程設備購置費調整為:22210.00-330.00+306.67=22136.67(萬元) (1.5分)
或:460×2.5/1.5=766.67(萬元) (0.5分)
22210.00-380.00-460+766.67=22136.67(萬元) (0.5分)
(3)類似工程安裝工程費調整;
不建粘土礦減12.00(萬元) (0.5分)
運礦皮帶長廊加長1.0hm增加152×1.0/1.5=101.33(萬元) (0.5分)
類似工程安裝工程費調整為;6456.00-12.00+101.33=6545.33(萬元) (1分)
或:152×2.5/1.5=253.3(萬元(0.5分)
6456.00 -12.00-152.00-253.33=6545.33(萬元) (1.5分)
問題2
(1)材料價差調整系數計算如下表:

擬建工程建筑工程費用為。
20057.67×(1+58.64%×24.32%+14.58%×43.00%+9.46%×17.50%+17.32%
×3.6%)=24632.76(萬元) (3分)
或:20057.67×(0.5864×1.2432+0.1458×1.43+0.0946×1.175+0.1732×1.036)
=20057.67×1.228=24630.82(萬元) (3分)
問題3;
擬建工程設備購置費為
22136.67×(1-2.91%)=21492.49(萬元) (2分)
擬建工程安裝工程費為
6545.33×(1+8.91%)=7128.52(萬元) (2分)
擬建工程的工程費用為
24632.76+21492.49+7128.52=53253.77(萬元) (1分)
2007年造價工程師考試——《工程造價管理基礎理論與相關法規》真題及答案
2007年造價工程師考試——《工程造價計價與控制》真題及答案
2007年造價工程師考試——《建設工程技術與計量(土建)》真題及答案
試題六:(40分)
Ⅰ.土建工程
問題1.

問題2:(12分)

問題3:(12分)


2007年造價工程師考試——《工程造價管理基礎理論與相關法規》真題及答案
2007年造價工程師考試——《工程造價計價與控制》真題及答案
2007年造價工程師考試——《建設工程技術與計量(土建)》真題及答案
Ⅱ.管道安裝工程
問題1.
寫出下列分部分項清單項日工程量的計算式:
1.管道DN300工程量的計算式:
(940-520)+2×3.5=420+7=427(m) (1.5分)
2.管道DN150工程量的計算式:
(400-305)+1=96(m)
3.管道DN100工程量的計算式:
(528-305+2×2.5)+(528-400-1)+(940-935)×2=228+127+10=365(m) (2分)
4.管道支架制作安裝工程量的計算式:
(427÷7×16)+(96÷6×15)+(365÷5×12)=976+240+876=2092(kg) (2分)


2007年造價工程師考試——《工程造價管理基礎理論與相關法規》真題及答案
2007年造價工程師考試——《工程造價計價與控制》真題及答案
2007年造價工程師考試——《建設工程技術與計量(土建)》真題及答案
問題2.
各有關項目的計算過程;
1.Φ1020×6碳鋼板直管制作工程量。
5000×0.15×1.04=780(t)(1.5分)
2.制作碳鋼板直管前,需對成卷碳鋼板進行開卷與平直的工程量。
780×1.05=819(t) (1分)
3.業主應供應標準成卷板材的數量及其費用。
標準成卷板材的數量: 819×(1+3%)=843.57(t) (1分)
標準成卷板材的費用:843.57×4800=4049136(元) (1分)
4.承包商應向業主計取的該項碳鋼板直管制作分部分項工程量清單費用數額;
5320536-4049136=1271400(元) (1分)

1.電氣安裝工程
問題1
1.鋼管Φ25工程量計算:
10+7+(0.2+0.1)×2+(0.2+0.3+0.2)×2=19(m) (2分)
2.鋼管Φ40工程量計算:
8+12+(0.2+0.1)×2+(0.2+0.3+0.2)×2=22(m) (2分)
3.電纜YJV4×2.5工程量計算:
10+7+(0.2+0.1)×2+(0.2+0.3+0.2)×2=19(m) (1.5分)
4.電纜YJV4×16工程量計算:
8+12+(0.2+0.1)×2+(0.2+0.3+0.2)×2=22(m) (1.5分)
5.電纜橋架200×100工程量計算:
22+[3-(2+0.1)]×2=23.8(m) (2分)
6.電纜YJV4×50工程量計算:
22+[3-(2+0.1)]×2=23.8(m) (1.5分)


2007年造價工程師考試——《工程造價管理基礎理論與相關法規》真題及答案
2007年造價工程師考試——《工程造價計價與控制》真題及答案
2007年造價工程師考試——《建設工程技術與計量(土建)》真題及答案
問題2:(20.5分)



備注:在表6.Ⅲ.3中:

2007年造價工程師考試——《工程造價管理基礎理論與相關法規》真題及答案
2007年造價工程師考試——《工程造價計價與控制》真題及答案
2007年造價工程師考試——《建設工程技術與計量(土建)》真題及答案
最新資訊
- 更新版:2025年一級造價師案例考試真題及答案(1-3題)2025-10-27
- 速領!2025年一級造價師各科目考試真題及答案【完整版】2025-10-26
- 2025年一級造價師《案例分析》真題解析(試題三)2025-10-25
- 2025年一級造價師《安裝計量》真題答案61-70題2025-10-23
- 2025年一級造價師《安裝計量》真題答案41-50題2025-10-23
- 2025年一級造價師《安裝計量》真題及答案31-40題2025-10-23
- 2025年一級造價師《安裝計量》真題答案21-30題2025-10-23
- 2025年一級造價師《案例分析》考試真題及答案(試題一)2025-10-23
- 2025年一級造價師案例真題及答案試題五(土建專業)2025-10-22
- 2025年一級造價師《土建計量》考試真題答案51-60題2025-10-22