土建工程實務輔導:結構施工圖3
更新時間:2009-10-19 15:27:29
來源:|0
瀏覽
收藏
二級造價工程師報名、考試、查分時間 免費短信提醒
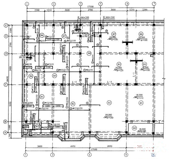
(二)屋頂結構平面圖
其表達的內容基本與樓層結構平面圖相同。但屋頂結構形式有時會有變化(如平屋頂、坡屋頂等),在圖中要用適當的方法表示出來。
圖1-2-9是某住宅單元屋頂結構平面圖。繪圖比例1:50,除四周反檐外其他結構線均為虛線(如墻、梁等)。樓板配筋與樓層結構平面圖基本相同,只增加了樓梯間上部板的配筋。

?2008年全國建設工程造價員資格考試大綱![]()
?2009年造價員考前網上輔導招生簡章
編輯推薦
上一篇:土建工程實務輔導:結構施工圖2
下一篇:土建工程實務輔導:結構施工圖4
最新資訊
- 免費下載!2025年新疆二級造價師考前3頁紙2025-11-04
- 免費下載~2025年河南二級造價工程師備考資料包2025-10-25
- 新疆2025年二造考試科目都有哪些2025-10-23
- 免費下載!2025年河南二級造價師備考資料包2025-10-23
- 2025年新疆二級造價工程師備考資料大匯總2025-10-10
- 考前3天搶分必刷!2025年上海二級造價工程師3套模考卷2025-10-09
- 最后3天抓緊背!2025年上海二級造價師考前3頁紙2025-10-09
- 沖刺備考必備!2025年上海二級造價師考試備考資料包2025-10-05
- 2025年新疆二級造價師考試大綱2025-10-02
- 黃金13天!2025年上海二級造價師備考這份資料盡早背2025-09-29