土建工程實務輔導:結構施工圖2
更新時間:2009-10-19 15:27:29
來源:|0
瀏覽
收藏
二級造價工程師報名、考試、查分時間 免費短信提醒
二、結構平面圖
(一)樓層結構平面圖
1.圖示方法及內容
樓層結構平面圖的圖示方法是假想沿每層樓板上表面水平剖切并向下投影得到的剖面圖。
樓層結構平面圖主要表示板、梁、墻等的布置情況。對現澆板,一般要在圖中反映板的配筋情況,若是預制板則反映板的選型、排列、數量等。梁的位置、編號以及板梁墻的連接或搭接情況等都要在圖中反映出來。另外樓層結構平面圖還反映圈梁,過梁,雨篷,陽臺等的布置。若構造復雜時,也可單獨成圖。
2.識圖舉例
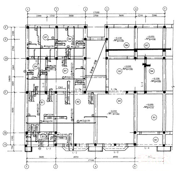
圖1-2-8是某住宅單元地下室頂板結構平面圖。本住宅有兩個單元,因兩個單元結構形式一樣,配筋相同,所以只畫一個單元。繪圖比例l:50,圖上被剖切到的構造柱被涂黑。板下梁在相應位置上注出(如L-l、L-2等),樓板按相同配筋、尺寸、板厚等條件分成7種板,用圓圈加編號的形式標出,樓板配筋用粗線按規定畫法畫出,一種板只畫一塊。因每塊板的板厚、標高不盡相同,所以需要一一標出,并在高低變化處畫出了重合斷面圖。樓梯間因習慣上需另畫詳圖,這里僅畫一條對角線并標注說明。樓梯結構圖的詳解單獨說明。

?2008年全國建設工程造價員資格考試大綱![]()
?2009年造價員考前網上輔導招生簡章
編輯推薦
上一篇:土建工程實務輔導:結構施工圖1
下一篇:土建工程實務輔導:結構施工圖3
最新資訊
- 免費下載!2025年新疆二級造價師考前3頁紙2025-11-04
- 免費下載~2025年河南二級造價工程師備考資料包2025-10-25
- 新疆2025年二造考試科目都有哪些2025-10-23
- 免費下載!2025年河南二級造價師備考資料包2025-10-23
- 2025年新疆二級造價工程師備考資料大匯總2025-10-10
- 考前3天搶分必刷!2025年上海二級造價工程師3套模考卷2025-10-09
- 最后3天抓緊背!2025年上海二級造價師考前3頁紙2025-10-09
- 沖刺備考必備!2025年上海二級造價師考試備考資料包2025-10-05
- 2025年新疆二級造價師考試大綱2025-10-02
- 黃金13天!2025年上海二級造價師備考這份資料盡早背2025-09-29