造價工程師輔導資料:墊層的內容和計算(2)
更新時間:2009-10-19 15:27:29
來源:|0
瀏覽
收藏
一級造價工程師報名、考試、查分時間 免費短信提醒
摘要 造價工程師輔導資料:墊層的內容和計算(2)
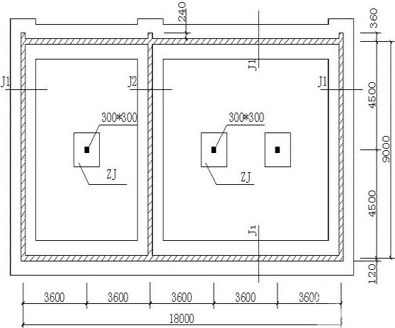
某建筑物基礎平面圖及詳圖如圖2-4( a)、(b)所示,地面做法:20厚1:2.5的水泥砂漿,100厚C10的素混凝土墊層,素土夯實。基礎為M5.0的水泥砂漿砌筑標準粘土磚。試求墊層工程量。



圖2-4c基礎詳圖
解:①C10的素混凝土地面墊層工程量:
V墊層=( S凈- S扣)×δ
=[(3.6×5-0.24×2)×(9-0.24)-0.3 × 0.3 ×3]×0.1
=15.32m3
套定額:2-1-13
、讵毩⒒AC10素混凝土墊層工程量:
V墊層= ab×δ×n
=1.3×1.3×0.1×3=0.51 m3
套定額:2-1-13
注意:墊層定額按地面墊層編制,獨立基礎墊層套定額時人工、機械要分別乘以系數1.10.
、蹢l形基礎3:7灰土墊層工程量:
V墊層= V外墻墊+V內墻墊
= S斷×L中+ S斷×L基底凈長
=1.2×0.3×[(9+3.6×5)×2+0.24×3]+ 1.2×0.3×(9-1.2)
=22.51 m3
套定額:2-1-1
注意:條形基礎墊層套定額時人工、機械要分別乘以系數1.05.
?2009年注冊造價工程師考考試時間:10月24、25日。
?2009年注冊造價工程師考前網上輔導招生簡章
?04、05、06、07年造價工程師考試試卷及答案匯總
?2009造價工程師老師輔導,現在報名可獲贈08和07年課程!
?08年全國注冊造價工程師考試成績查詢及反饋 
編輯推薦
下一篇:造價工程師輔導工程成本限額設計
最新資訊
- 備考必看:一級造價師《安裝計量》十大核心知識點總結2025-11-02
- 速看!一級造價師《土建計量》十大核心考點總結2025-11-01
- 免費分享:一級造價師《工程計價》十大核心考點總結2025-10-31
- 一鍵收藏:一級造價師《造價管理》十大核心考點總結2025-10-30
- 免費分享:2025年一級造價師《工程計價》考點匯總2025-10-29
- 2025年一級造價師《工程計價》考試難度及考點分析2025-10-28
- 免費分享:2025年一級造價師《造價管理》考點匯總2025-10-27
- 免費分享:2025年一級造價師案例分析重要考點匯總2025-10-27
- 2025年一級造價師《造價管理》重點考查內容2025-10-24
- 深度解析:2025年一級造價師案例考試難度及考察重點2025-10-23