2006年造價工程師案例分析試題
某工業項目計算期為l0年,建設期2年,第3年投產,第4年開始達到設計生產能力。建設投資2800萬元(不含建設期貸款利息),第l年投入1000萬元,第2年投入1800萬元。投資方自有資金2500萬元,根據籌資情況建設期分兩年各投入l000萬元,余下的500萬元在投產年初作為流動資金投入。建設投資不足部分向銀行貸款,貸款年利率為6%,從第3年起,以年初的本息和為基準開始還貸,每年付清利息,并分5年等額還本。
該項目固定資產投資總額中,預計85%形成固定資產,15%形成無形資產。固定資產綜合折舊年限為10年,采用直線法折舊,固定資產殘值率為5%,無形資產按5年平均攤銷。
該項目計算期第3年的經營成本為1500萬元、第4年至第10年的經營成本為1800萬元。設計生產能力為50萬件,銷售價格(不含稅)54元/件。產品固定成本占年總成本的40%。
問題
1.列式計算固定資產年折舊額及無形資產攤銷費,并按答題紙表l.1所列項目填寫相應數字。
2.列式計算計算期末固定資產余值。
3.列式計算計算期第3年、第4年、第8年的總成本費用。
4.以計算期第4年的數據為依據,列式計算年產量盈虧平衡點,并據此進行盈虧平衡分析。
?。ǔ龁栴}4計算結果保留兩位小數外,其余各題計算結果均保留三位小數。)
試題二(20分)
某咨詢公司受業主委托,對某設計院提出的8000m2工程量的屋面工程的A、B、C三個設計方案進行評價。該工業廠房的設計使用年限為40年。咨詢公司評價方案中設置功能實用性(F1)、經濟合理性(F2)、結構可靠性(F3)、外形美觀性(F4)、與環境協調性(F5)等五項評價指標。該五項評價指標的重要程度依次為:Fl、F3、F2、F5、F4,各方案的每項評價指標得分見表2.1.各方案有關經濟數據見表2.2.基準折現率為6%,資金時間價值系數見表2.3.
表2.1 各方案評價指標得分表
|
方案出指標 |
A |
B |
C |
|
F1 |
9 |
8 |
10 |
|
F2 |
8 |
10 |
9 |
|
F3 |
10 |
9 |
8 |
|
F4 |
7 |
9 |
9 |
|
F5 |
8 |
10 |
8 |
表2.2 各方案有關經濟數據匯總表
| 方案 | A | B | C |
| 含稅全費用價格(元/m2) | 65 | 80 | 115 |
| 年度維護費用(萬元) | 1.40 | 1.85 | 2.70 |
| 大修周期(年) | 5 | 10 | 15 |
| 每次大修費(萬元) | 32 | 44 | 60 |
表2.3 資金時間價值系數表
| n | 5 | 10 | 15 | 20 | 25 | 30 | 35 | 40 |
| (P/F,6%,n) | 0.7474 | 0.5584 | 0.4173 | 0.3118 | 0.2330 | 0.1741 | 0.1301 | 0.0972 |
| (A/P。6%,n | 0.2374 | 0.1359 | 0.1030 | 0.0872 | 0.0782 | 0.0726 | 0.0690 | 0.0665 |
問題
1.用0-1評分法確定各項評價指標的權重并把計算結果填入答題紙表2.4.
2.列式計算A、B、C三個方案的加權綜合得分,并選擇最優方案。
3.計算該工程各方案的工程總造價和全壽命周期年度費用,從中選擇最經濟的方案(注:不考慮建設期差異的影響,每次大修給業主帶來不便的損失為1萬元,各方案均無殘值)。
?。▎栴}1的計算結果保留三位小數,其他計算結果保留兩位小數。)
試題三(20分)
某總承包企業擬開拓國內某大城市工程承包市場。經調查該市目前有A、B兩個BOT項目將要招標。兩個項目建成后經營期限均為15年。
為了順利進行投標,企業經營部將在該市投標全過程按先后順序分解為以下幾項工作:(1)投標申請;(2)接受資格審查;(3)領取招標文件;(4)參加投標預備會;(5)參加現場踏勘;(6)編制投標文件;(7)編制項目可行性研究論證報告;(8)投送投標文件;(9)投標文件內容說明與陳述;(10)參加開標會議;(11)簽訂合同。
經進一步調研,收集和整理出A、B兩個項目投資與收益數據,見表3.1.
表3. 1 A、B項目投資與收益數據表
| 項目名稱 | 初始投資(萬元) | 運營期每年收益(萬元) | ||
| 1~5年 | 6~10年 | 11~15年 | ||
| A項目 | 10000 | 2000 | 2500 | 3000 |
| B項目 | 7000 | 1500 | 2000 | 2500 |
基準折現率為6%,資金時間價值系數見表3.2.
| n | 5 | 10 | 15 |
| (P/F,6%,n) | 0.7474 | 0.5584 | 0.4173 |
| (P/A,6%,n) | 4.2123 | 7.3601 | 9.7122 |
問題
1.經營部擬定的各項投標工作的先后順序有何不妥?
2.不考慮建設期的影響,分別列式計算A、B兩個項目總收益的凈現值。
3.據估計:投A項目中標概率為0.7,不中標費用損失80萬元;投B項目中標概率為0.65,不中標費用損失l00萬元。若投B項目中標并建成經營5年后,可以自行決定是否擴建,如果擴建,其擴建投資4000萬元,擴建后B項目每年運營收益增加1000萬元。
按以下步驟求解該問題:
?。?)計算B項目擴建后總收益的凈現值;
?。?)將各方案總收益凈現值和不中標費用損失作為損益值,繪制投標決策樹;
?。?)判斷B項目在5年后是否擴建?計算各機會點期望值,并做出投標決策。
?。ㄓ嬎憬Y果均保留二位小數。)
試題四(20分)
某施工單位與建設單位按《建設工程施工合同(示范文本)》簽訂了固定總價施工承包合同,合同工期390天,合同總價5000萬元。合同中約定按建標[2003]206號文綜合單價法計價程序計價,其中間接費費率為20%,規費費率為5%,取費基數為人工費與機械費之和。
施工前施工單位向工程師提交了施工組織設計和施工進度計劃(圖4.1)。

該工程在施工過程中出現了如下事件:
?。?)因地質勘探報告不詳,出現圖紙中未標明的地下障礙物,處理該障礙物導致工作A持續時間延長l0天,增加人工費2萬元、材料費4萬元、機械費3萬元。
(2)基坑開挖時因邊坡支撐失穩坍塌,造成工作占持續時間延長l5天,增加人工費l萬元、材料費l萬元、機械費2萬元。
?。?)因不可抗力而引起施工單位的供電設施發生火災,使工作C持續時間延長10天,增加人工費1.5萬元、其他損失費5萬元。
(4)結構施工階段因建設單位提出工程變更,導致施工單位增加人工費4萬元、材料費6萬元、機械費5萬元,工作E持續時間延長30天。
?。?)因施工期間鋼材漲價而增加材料費7萬元。
針對上述事件,施工單位按程序提出了工期索賠和費用索賠。
問題
1.按照圖4.1的施工進度計劃,確定該工程的關鍵線路和計算工期,并說明按此計劃該工程是否能按合同工期要求完工?
2.對于施工過程中發生的事件,施工單位是否可以獲得工期和費用補償?分別說明理由。
3.施工單位可以獲得的工期補償是多少天?說明理由。
4.施工單位租賃土方施工機械用于工作A、B,日租金為1500元/天,則施工單位可以得到的土方租賃機械的租金補償費用是多少?為什么?
5.施工單位可得到的企業管理費補償是多少?
試題五(20分)
某工程項目,建設單位通過公開招標方式確定某施工單位為中標人,雙方簽訂了工程承包合同,合同工期3個月。
合同中有關工程價款及其支付的條款如下:
?。?)分項工程清單中含有兩個分項工程,工程量分別為甲項4500m3,乙項31 000m3,清單報價中,甲項綜合單價為200元/m3,乙項綜合單價為l2.93元/m3,乙項綜合單價的單價分析表見表5.1.當某一分項工程實際工程量比清單工程量增加超出10%時,應調整單價,超出部分的單價調整系數為0.9;當某一分項工程實際工程量比清單工程量減少10%以上時,對該分項工程的全部工程量調整單價,單價調整系數為1.1.(2)措施項目清單共有7個項目,其中環境保護等3項措施費用4.5萬元,這3項措施費用以分部分項工程量清單計價合計為基數進行結算。剩余的4項措施費用共計l6萬元,一次性包死,不得調價。全部措施項目費在開工后的第1個月末和第2個月末按措施項目清單中的數額分兩次平均支付,環境保護措施等3項費用調整部分在最后一個月結清,多退少補。
?。?)其他項目清單中只包括招標人預留金5萬元,實際施工中用于處理變更洽商,最后一個月結算。
?。?)規費綜合費率為4.89%,其取費基數為分部分項工程量清單計價合計、措施項目清單計價合計、其他項目清單計價合計之和;稅金的稅率為3.47%。
(5)工程預付款為簽約合同價款的10%,在開工前支付,開工后的前兩個月平均扣除。
?。?)該項工程的質量保證金為簽約合同價款的3%,自第l個月起,從承包商的進度款中,按3%的比例扣留。
合同工期內,承包商每月實際完成并經工程師簽證確認的工程量如表5.2所示。
表5.1 ?。ㄒ翼椆こ蹋┕こ塘壳鍐尉C合單價分析表(部分) 單位:元/m3
|
直接費 |
人工費 |
0.54 |
10.89 | |
|
材料費 |
0 | |||
|
機械費 |
反鏟挖掘機 |
1.83 | ||
|
履帶式推土機 |
1.39 | |||
|
輪式裝載機 |
1.50 | |||
|
自卸卡車 |
5.63 | |||
|
管理費 |
費率(%) |
12 | ||
|
金額 |
1.31 | |||
|
利潤 |
利潤率(%) |
6 | ||
|
金額 |
0.73 | |||
|
綜合單價 |
12.93 | |||
|
月份
分項工程 |
1 |
2 |
3 |
|
甲項工程量( m3) |
1600 |
1600 |
1000 |
|
乙項工程量( m3) |
8000 |
9000 |
8000 |
1.該工程簽約時的合同價款是多少萬元?
2.該工程的預付款是多少萬元?
3.該工程質量保證金是多少萬元?
4.各月的分部分項工程量清單計價合計是多少萬元?并對計算過程做必要的說明。
5.各月需支付的措施項目費是多少萬元?
6.承包商第1個月應得的進度款是多少萬元?
(計算結果均保留兩位小數。)
試題六(40分)
本試題分三個專業(1.土建工程、Ⅱ.工業管道安裝工程、Ⅲ.電氣安裝工程),請任選其中一題作答。若選作多題,按所答的第一題(卷面順序)計分。
1.土建工程
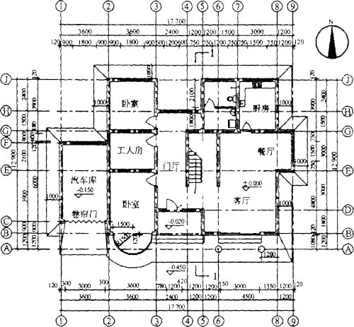
某別墅部分設計如圖6.I所示。墻體除注明外均為240mm厚。坡屋面構造做法:鋼筋混凝土屋面板表面清掃干凈,素水泥漿一道,20mm厚l:3水泥砂漿找平,刷熱防水膏,采用20mm厚1:3干硬性水泥砂漿防水保護層;25mm厚1:1:4水泥石灰砂漿鋪瓦屋面。臥室地面構造做法:素土夯實,60mm厚C10混凝土墊層,20mm厚l:2水泥砂漿抹面壓光。臥室按面構造做法:150mm現澆鋼筋混凝土樓板,素水泥漿一道,20mm厚l:2水泥砂漿抹面壓光。
問題
1.依據《建筑工程建筑面積計算規范}(GB/T50353――2005)的規定,計算別墅的建筑面積。將計算過程及計量單位、計算結果填入答題紙表6.I.1“建筑面積計算表”。

圖6.I.1一層平面圖1:100
注:弧形落地窗半徑只=1500mm(為B軸外墻外邊線到弧形窗邊線的距離,弧形窗的厚度忽略不計)
2.依據《建設工程工程量清單計價規范》計算臥室(不含衛生問)樓面、地面工程量,計算坡屋面工程量。將計算過程及結果填入答題紙表6.I.2“分部分項工程量計算表”。
3.依據《建設工程工程量清單計價規范》編制臥室樓面、地面,坡屋面工程的分部分項工程量清單,填入答題紙表6.I.3“分部分項工程量清單表”(水泥砂漿樓地面的項目編碼為020101001,瓦屋面的項目編碼為010701001)。
4.依據《建設工程工程量清單計價規范》編制“單位工程費匯總表”。假設別墅部分項目的分部分項工程量清單計價合計207 822元,其中人工費41 560元;措施項目清單計價合計48 492元;其他項目清單計價合計l2 123元;規費以人工費為基數計取,費率為30%;稅率為3.413%。將有關數據和相關內容填入答題紙表6.I.4“單位工程費匯總表”。
(計算結果均保留兩位小數。)




?、?管道安裝工程
1.某總承包施工企業根據某安裝工程的招標文件和施工方案決定按以下數據及要求進行投標報價:
該安裝工程按設計文件計算出各分部分項工程工料機費用合計為6000萬元,其中人工費占10%。
安裝工程腳手架搭拆的工料機費用,按各分部分項工程人工費合計的8%計取,其中人工費占25%;安全防護、文明施工措施費用,按當地工程造價管理機構發布的規定計100萬元,根據建設部建辦[2005]89號《建筑工程安全防護、文明施工措施費用及使用管理規定》中“投標方安全防護、文明施工措施的報價,不得低于根據工程所在地工程造價管理機構測定費率計算所需費用總額的90%”的規定,業主要求按90%計;其他措施項目清單費用按l50萬元計。
施工管理費、利潤分別按人工費的60%、40%計。
按業主要求,總承包企業將占工程總量20%的部分專業工程發包給某專業承包企業,總承包服務費按分包專業工程各分部分項工程人工費合計的l5%計取。
規費按8萬元計;稅金按稅率3.50%計。
2.其中某生產裝置中部分工藝管道系統如圖6.Ⅱ所示。
管道系統各分部分項工程量清單項目的統一編碼見下表:
| 項目編碼 | 項目名稱 | 項目編碼 | 項目名稱 |
| 030602002 | 中壓碳鋼管道 | 030615001 | 管架制作安裝 |
| 030605001 | 中壓碳鋼管件 | 030616003 | 焊縫X光射線探傷 |
| 030608002 | 中壓法蘭閥門 | 030616005 | 焊縫超聲波探傷 |
| 0306l1003 | 中壓碳鋼對焊法蘭 |
問題
1.按照《建設工程工程量清單計價規范》和建標[2003]206號文《建筑安裝工程費用項目組成》的規定,計算出總承包企業對該單項工程的(含分包專業工程)投標報價。將各項費用的計算結果填入答題紙表6.Ⅱ。1“單項工程費用匯總表”中,其計算過程寫在表6.Ⅱ.1“單項工程費用匯總表”的下面。(計算結果均保留整數)
2.根據《建設工程工程量清單計價規范》的規定,計算管道φ89×4、管道φ76×4、管道φ57×3.5、管架制作安裝、焊縫x光射線探傷、焊縫超聲波探傷等六項工程量,并寫出計算過程(計算結果均保留一位小數)。編列出該管道系統(注:閥門、法蘭安裝除外)的分部分項工程量清單項目,將結果填入答題紙表6.Ⅱ.2“分部分項工程量清單表”。

說明:
1.本圖所示為某工廠生產裝置的部分工藝管道系統,該管道系統工作壓力為2.0MPa.圖中標注尺寸標高以m計,其他均以mm計。
2.管道均采用20#碳鋼無縫鋼管,彎頭采用成品壓制彎頭,三通為現場挖眼連接,管道系統的焊接均為氬電聯焊。
3.所有法蘭為碳鋼對焊法蘭;閥門型號:止回閥為H41H一25,截止閥為J41H一25,采用對焊法蘭連接。
4.管道支架為普通支架,共耗用鋼材42.4kg,其中施工損耗為6%。
5.管道系統安裝就位后,對φ76×4的管線的焊口進行無損探傷。其中法蘭處焊口采用超聲波探傷;管道焊縫采用x光射線探傷,片子規格為80mm×l50mm,焊口按36個計。
6.管道安裝完畢后,均進行水壓試驗和空氣吹掃。管道、管道支架除銹后,均進行刷防銹漆、調和漆各兩遍。
?、?電氣安裝工程
某別墅局部照明系統回路如圖6.Ⅲ.1和圖6.Ⅲ.2所示。
表中數據為該照明工程的相美費用:
| 序號 | 項目名稱 | 計量單位 | 安裝費(元) | 主材 | |||
| 人工費 | 材料費 | 機械使用費 | 單價(元) | 損耗率(%) | |||
| l | 鍍鋅鋼管暗配DN20 | m | 1.28 | 0.32 | 0.18 | 3.50 | 3 |
| 2 | 照明線路管內穿線BV2.5mm2 | m | 0.23 | 0.18 | 0 | 1.50 | 16 |
| 3 | 暗裝接線盒 | 個 | 1.05 | 2.15 | 0 | 3.00 | 2 |
| 4 | 暗裝開關盒 | 個 | 1.12 | 1.00 | 0 | 3.00 | 2 |
管理費和利潤分別按人工費的65%和35%計。
分部分項工程量清單的統一編碼如下:
| 項目編碼 | 項目名稱 | 項目編碼 | 項目名稱 |
| 030212001 | 電氣配管 | 030204031 | 小電器 |
| 030212003 | 電氣配線 | 030213003 | 裝飾燈 |
| 030204018 | 配電箱 | 03021300l | 普通吸頂燈及其他燈具 |
| 030204019 | 控制開關 | 030204017 | 控制箱 |
問題
1.根據圖示內容和《建設工程工程量清單計價規范》的規定,計算相關工程量和編制分部分項工程量清單。將配管和配線的計算式填入答題紙上的相應位置,并填寫答題織表6.Ⅲ.1“分部分項工程量清單表”。
2.假設鍍鋅鋼管DN20暗配和管內穿絕緣導線BV2.5mm2清單工程量分別為30m和80m,依據上述相關費用數據計算以上兩個項目的綜合單價,并分別填寫答題紙表6.Ⅲ.2和表6.Ⅲ.3“分部分項工程量清單綜合單價計算表”。
3.依據問題2中計算所得的數據進行綜合單價分析,將電氣配管(鍍鋅鋼管DN20暗配)和電氣配線(管內穿絕緣導線BV2.5mm2)兩個項目的綜合單價及其組成計算后填寫答題紙表6.Ⅲ.4“分部分項工程量清單綜合單價分析表”。
?。ㄓ嬎氵^程和結果均保留兩位小數。)


最新資訊
- 更新版:2025年一級造價師案例考試真題及答案(1-3題)2025-10-27
- 速領!2025年一級造價師各科目考試真題及答案【完整版】2025-10-26
- 2025年一級造價師《案例分析》真題解析(試題三)2025-10-25
- 2025年一級造價師《安裝計量》真題答案61-70題2025-10-23
- 2025年一級造價師《安裝計量》真題答案41-50題2025-10-23
- 2025年一級造價師《安裝計量》真題及答案31-40題2025-10-23
- 2025年一級造價師《安裝計量》真題答案21-30題2025-10-23
- 2025年一級造價師《案例分析》考試真題及答案(試題一)2025-10-23
- 2025年一級造價師案例真題及答案試題五(土建專業)2025-10-22
- 2025年一級造價師《土建計量》考試真題答案51-60題2025-10-22