土建工程實務輔導:結構施工圖7
更新時間:2009-10-19 15:27:29
來源:|0
瀏覽
收藏
二級造價工程師報名、考試、查分時間 免費短信提醒
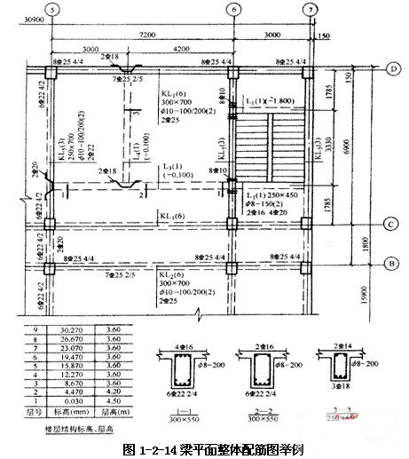
2.截面注寫方式
截面注寫方式是將斷面號直接畫在平面梁配筋圖上,斷面詳圖畫在本圖或其他圖上。截面注寫方式既可以單獨使用,也可與平面注寫方式結合使用,如在梁密集區,采用截面注寫方式可使圖面清晰。
圖1-2-14為平面注寫和截面注寫結合使用的圖例。圖中吊筋直接畫在平面圖中的主梁上,用引線注明總配筋值,如L3中吊筋2ф18
圖1-2-10 粱平面整體配筋圖舉例

(三)柱的配筋圖畫法
柱平面整體配筋圖是在柱平面布置圖上采用列表注寫方式或截面注寫方式表達。
用雙比例法畫柱平面配筋圖,在柱所在平面位置上,將各柱斷面放大后,在兩個方向上分別注明同軸線的關系,將柱配筋值、配筋隨高度變化值及斷面尺寸、尺寸隨高度變化值與相應的柱高范圍成組對應,在圖上注明。柱箍筋間距加密區與非加密區間距值用“/”線分開。
在注寫上述各種數值時用列表的方式注寫叫列表注寫方式;分別在不同編號的柱中選擇一個截面直接注寫的方式叫截面注寫方式。
圖1-2-15為列表注寫方式示例。

編輯推薦
上一篇:土建工程實務輔導:結構施工圖6
下一篇:土建工程實務輔導:結構施工圖匯總
最新資訊
- 免費下載!2025年新疆二級造價師考前3頁紙2025-11-04
- 免費下載~2025年河南二級造價工程師備考資料包2025-10-25
- 新疆2025年二造考試科目都有哪些2025-10-23
- 免費下載!2025年河南二級造價師備考資料包2025-10-23
- 2025年新疆二級造價工程師備考資料大匯總2025-10-10
- 考前3天搶分必刷!2025年上海二級造價工程師3套模考卷2025-10-09
- 最后3天抓緊背!2025年上海二級造價師考前3頁紙2025-10-09
- 沖刺備考必備!2025年上海二級造價師考試備考資料包2025-10-05
- 2025年新疆二級造價師考試大綱2025-10-02
- 黃金13天!2025年上海二級造價師備考這份資料盡早背2025-09-29