土建工程實務輔導:裝飾施工圖知識4
更新時間:2009-10-19 15:27:29
來源:|0
瀏覽
收藏
二級造價工程師報名、考試、查分時間 免費短信提醒
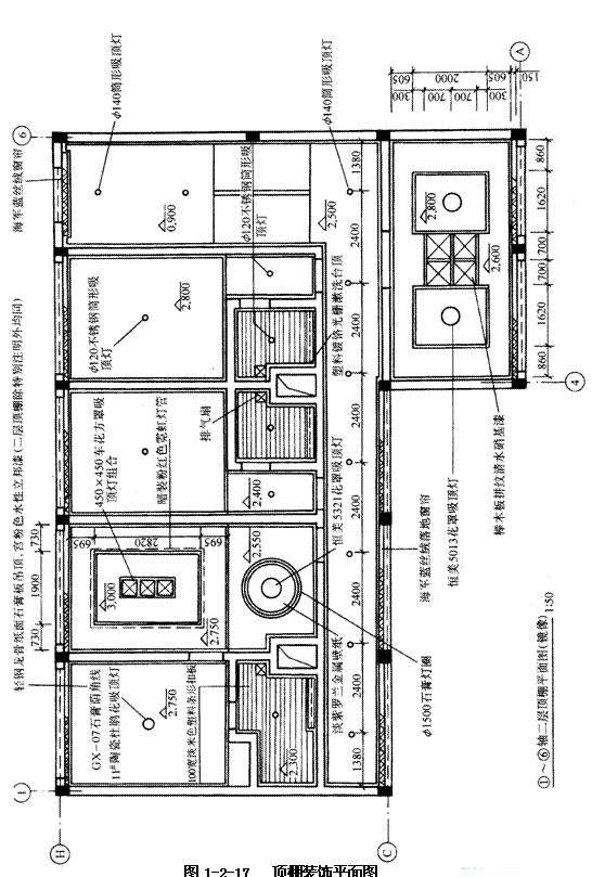
(三)裝飾立面圖的識讀
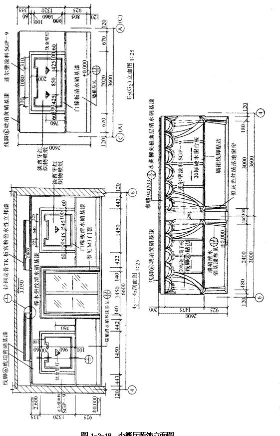
圖1-2-18是某招待所小餐廳墻面的立面圖,其中④~⑥立面圖是以剖面的形式表示的。圖上這三幅圖表示出小餐廳三個墻面上用白櫸板作的造型、大小、內部配置的鈦金壁燈,該造型內貼淡西牙紅織物壁紙,外涂迷爾壁涂料,頂棚采用輕鋼龍骨掛TK板,刷宮粉色水性立邦漆,高低錯落,下部標高2.600,上部標高2.800。F2立面圖上表達了裝飾柱的材料――迷爾壁涂料SGP-9,20mm厚硬木窗臺板,以及橙灰色落地窗簾。


?2008年全國建設工程造價員資格考試大綱![]()
?2009年造價員考前網上輔導招生簡章
編輯推薦
最新資訊
- 免費下載!2025年新疆二級造價師考前3頁紙2025-11-04
- 免費下載~2025年河南二級造價工程師備考資料包2025-10-25
- 新疆2025年二造考試科目都有哪些2025-10-23
- 免費下載!2025年河南二級造價師備考資料包2025-10-23
- 2025年新疆二級造價工程師備考資料大匯總2025-10-10
- 考前3天搶分必刷!2025年上海二級造價工程師3套模考卷2025-10-09
- 最后3天抓緊背!2025年上海二級造價師考前3頁紙2025-10-09
- 沖刺備考必備!2025年上海二級造價師考試備考資料包2025-10-05
- 2025年新疆二級造價師考試大綱2025-10-02
- 黃金13天!2025年上海二級造價師備考這份資料盡早背2025-09-29